Découvrez comment iStone gère la pose d’une vasque entre murs, tout en prenant en compte les contraintes terrain.

Pourquoi choisir iStone > Support de fixation pour plan vasque : pourquoi les consoles ne suffisent plus
Temps de Lecture
6 min
Partager l'article

Risque d’affaissement de la vasque en cas de soutien insuffisant.
N.B.: N’ayant aucun exemple de support iStone défectueux, nous avons dû recourir exceptionnellement à l’IA pour générer ce visuel.
Vous avez imaginé un plan vasque parfait. Design, matériau, couleur… tout est validé. Mais qu’en est-il de sa tenue dans le temps ?
Le support de fixation pour plan vasque est la clé.
C’est l’élément invisible qui garantit la robustesse et la durabilité de votre installation, surtout dans des lieux publics à fort passage
Alors, pourquoi choisir un support complet plutôt que de simples consoles ?
Découvrez comment notre approche chez iStone sécurise vos projets.
Oubliez l’effet de levier destructeur des consoles.
Une console (équerre) seule crée une tension forte et localisée sur la cloison.
Tout le poids de la vasque et la force exercée par l’utilisateur sont concentrés sur quelques vis.
Un point de faiblesse est vite apparu.
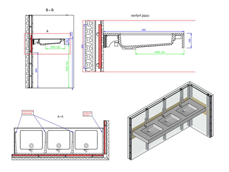
La solution : un véritable « sandwich » technique
Cette méthode répartit la charge sur une surface beaucoup plus grande. Les supports agissent comme un cadre ou un dosseret technique.
L’effort n’est plus un point critique.
C’est essentiel pour les plans vasques longs ou sans mur latéral.
Présentation de la fixation du support TH au renfort mural pour pose d’une vasque LYNKA.
Exemple d’ajout de renforts pour supporter une charge plus importante.
Le temps, c’est de l’argent. Et la fiabilité, c’est la sérénité.
Finis les tracas d’alignement.
Installer plusieurs consoles indépendantes, c’est un vrai casse-tête pour l’alignement parfait. La moindre erreur ? Une vasque qui ne tient pas droit, ou des tensions dans le matériau.
💡La solution : un ensemble unique à poser
Nos supports iStone sont prêts à poser, livrés comme un ensemble unique et indéformable.
L’installateur n’a qu’un seul élément à mettre de niveau.
Les points de fixation sont déjà parfaitement alignés dans notre atlier.
Gain de temps sur le chantier, garantie d’une pose parfaite.
Extrait de notre notice de montage : simplification du processus de pose, au niveau des outils et du temps nécessaire.
Notre équipe est à votre disposition.
Ouvert de 7h à 16h30, du lundi au vendredi
info@istone.fr
+ 33 4 82 82 98 10
Dans le cas de charges plus importantes, nous préconisons l’installation de renforts à intervalles réguliers.
Ces renforts peuvent intégrer des systèmes de réglage ingénieux, qui permettent un ajustement ultra-précis lors de la pose finale.
La vasque est parfaitement de niveau et d’aplomb, quel que soit le support choisi.
C’est la garantie d’une finition impeccable, sans compromis.
Renfort avec vérins de réglage, en version mélaminé
Renfort avec vérins de réglage, en version inox
Compte tenu de l’importance cruciale du support de fixation dans la perspective de durabilité, il est vital d’être accompagné et guidé par un professionnel.
Certains concurrents vous laissent deviner le nombre de consoles nécessaires à votre plan vasque. C’est un risque que nous refusons de prendre.
💡La solution : faire confiance à un partenaire expérimenté
Chez iStone, nous vous apportons une expertise complète pour choisir le bon support de fixation pour plan vasque. Notre Bureau d’Études analyse précisément votre projet :
Nous vous prescrivons la solution de support optimale. Zéro incertitude, zéro risque.
Notre bureau d’études, en soutien de notre service commercial, vous conseillera le support de fixation le plus pérenne pour votre projet
Chaque projet est unique. Vos besoins le sont aussi.
Notre gamme de supports est déjà très étendue, pour répondre à la plupart des configurations.
Mais si votre projet est atypique, nous allons plus loin. Puisque nous sommes fabricants en Haute-Loire , nous pouvons créer des variantes sur mesure de nos supports.
C’est l’essence de notre offre : une adaptabilité totale pour les architectes et les projets les plus exigeants.
Comme sur ce projet, où nous avons modifié un modèle existant de notre gamme pour mieux répondre aux contraintes de notre client en ajoutant des renforts réguliers sous forme de consoles.
Ne sous-estimez jamais l’importance d’un bon support de fixation pour plan vasque. Il est la garantie de la durabilité, de la sécurité et de la satisfaction de vos clients.
Voici la solution du support iStone :

Avec iStone, vous choisissez :
La robustesse d’un système conçu pour durer.
La simplicité d’une pose fiable et rapide.
L’expertise d’un partenaire qui vous accompagne à chaque étape.
Découvrez comment iStone gère la pose d’une vasque entre murs, tout en prenant en compte les contraintes terrain.
Découvrez comment notre département R&D conçoit des produits sur mesure et des solutions fiables & performantes.
Découvrez comment iStone aide la prescription de produits et la conception de solutions, en s’adaptant aux contraintes spécifiques de chaque projet.

Retrouvez notre gamme de vasque à poser en résine de synthèse, idéale pour les espaces eau et salles de bains

Retrouvez nos gammes de plans vasques collectif en résine de synthèse, idéale pour les espaces collectifs

Retrouvez notre gamme de plans vasque d’angle en résine de synthèse, idéale pour les espaces eau et salles de bains

Les supports de fixation d’iStone sont conçus pour garantir une installation facile et stable de leurs plans vasques

Nous proposons une large gamme de Miroirs pour compléter vos espaces sanitaires de bureaux

Nous proposons une large gamme d’accessoires pour compléter votre plan vasque en Solid Surface

Leader à l’échelle européenne dans la confection d’ouvrage en Solid Surface iStone est une société à taille humaine équipé de divers talents …

Les supports de fixation d’iStone sont conçus pour garantir une installation facile et stable de leurs plans vasques


Chez iStone, nous sommes fiers de nos racines françaises et du savoir-faire exceptionnel de notre atelier

