Découvrez comment iStone gère la pose d’une vasque entre murs, tout en prenant en compte les contraintes terrain.

Pourquoi choisir iStone > Le BIM dans les sanitaires : les 6 clashs qui ruinent vos chantiers
Temps de Lecture
7 min
Partager l'article

Le BIM a promis de révolutionner la construction. Plus de collaboration, moins d’erreurs, des chantiers plus fluides.
Pourtant, sur le terrain, le diable se cache toujours dans les détails. Et dans les sanitaires, ces détails peuvent vite devenir un cauchemar pour les Bureaux d’Études.
Un siphon qui traverse une cloison, une robinetterie désaxée, un accès maintenance oublié… Ces « clashs » coûtent cher en temps et en argent.
Grâce à l’expérience de notre Bureau d’Etudes, nous avons identifié les 6 conflits les plus courants entre le lot plomberie et l’agencement.
Nous vous proposons de découvrir comment les éradiquer, et comment aborder sereinement le BIM dans les sanitaires grâce à une bonne méthode et les bons partenaires.
Les espaces sanitaires sont de petites surfaces où de nombreux corps de métier doivent cohabiter : plombier, plaquiste, électricien, agenceur…
Et même si nous avons développé des solutions comme la “Pose fin de chantier” pour permettre une meilleure coordination entre les équipes, notre expertise intervient également en amont, lors de la conception des sanitaires.
En effet, le moindre décalage dans la maquette numérique se transforme en problème insoluble sur le chantier.
“
Beau sur l’écran, impossible sur le chantier.
Voici les erreurs que l’on retrouve sur presque tous les projets, et les solutions pour ne plus jamais les rencontrer.
C’est le problème le plus courant du BIM dans les sanitaires . L’architecte dessine une vasque élégante, le BET Fluides positionne son évacuation, mais personne ne vérifie l’encombrement réel du siphon.
Résultat : sur chantier, le siphon « tape » dans le mur ou la cloison en BA13, obligeant à des bricolages de dernière minute.
💡La solution : un objet BIM avec des données fiables
Un bon objet BIM pour une vasque ne doit pas être qu’une jolie forme. Il doit intégrer :

Chez iStone, nous allons même au-delà de la conception : nous avons réalisé notre propre modèle de siphon, grâce à une imprimante 3D !
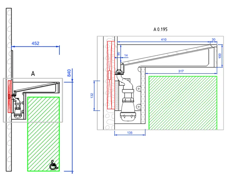
Esthétique et minimaliste, la robinetterie murale est très tendance. Mais son positionnement est un vrai défi de coordination.
Souvent, la sortie d’eau n’est pas parfaitement alignée avec le centre de la vasque ou sa bonde.
💡La solution : un point de référence unique
Un objet BIM de qualité (LOD 360) doit inclure un « point d’insertion » ou un axe clair pour la robinetterie.
Cela permet au BET Fluides de caler ses réseaux sur une information fournie par le fabricant, garantissant un alignement parfait, et de faire fonctionner parfaitement le BIM dans les sanitaires.

Exemple de plan proposé par le Bureau d’Études iStone, assurant l’alignement parfait entre mitigeur mural et plan vasque
Notre équipe est à votre disposition.
Ouvert de 7h à 16h30, du lundi au vendredi
info@istone.fr
+ 33 4 82 82 98 10
Une vasque suspendue nécessite un support mural robuste. Mais où le fixer si une gaine de ventilation ou un chemin de câbles passe juste derrière ?
C’est un clash typique d’un manque d’anticipation entre les lots.
C’est une expertise que nous développons chez iStone. Par exemple, nos supports de fixation sont disponibles en format BIM pour garantir une intégration sans surprise.

Modélisation des supports de vasques pour anticiper les conflits
La maintenance, c’est l’angle mort de nombreux projets.
On conçoit un ensemble magnifique, mais le jour où il faut changer un flexible ou accéder au siphon, tout est scellé.
Nous avons rédigé un article dédié à la maintenance des plans vasques : consulter ce dossier.
💡La solution : intégrer les zones de maintenance dans le BIM
Pour assurer un lien impeccable entre BIM et sanitaires, un bon fournisseur doit fournir des objets BIM qui incluent les « zones de maintenance » :
Exemple : le support de fixation THALLIS intègre des portes pour un accès direct aux siphons et à la robinetterie.
Les normes d’accessibilité PMR sont très strictes : hauteur de la vasque, espace libre en dessous pour le passage des genoux…
Un clash fréquent est un plan vasque dont le support ou le siphon empiète sur cet espace réglementaire.

💡 La solution : des objets BIM qui intègrent les gabarits normatifs
La modélisation doit aller au-delà du produit. Elle doit inclure les « espaces d’usage » réglementaires.
Cela permet de valider la conformité PMR directement dans la maquette, bien avant le chantier, et d’éviter un problème de plus du BIM dans les sanitaires.
C’est l’un des oublis les plus courants et les plus critiques du BIM dans les sanitaires, surtout dans les lieux publics où la robustesse est non négociable.
L’architecte choisit un superbe plan vasque en Solid Surface, mais la maquette BIM ne précise pas toujours la nature de la cloison derrière (BA13 standard, cloison renforcée…). L’entreprise de pose arrive sur le chantier et constate que le mur n’est pas conçu pour supporter le poids de la vasque et de son usage intensif.
Résultat : le chantier est bloqué. Il faut soit ouvrir une cloison déjà finie pour y intégrer un renfort, soit changer de solution de vasque en urgence.
💡La solution : l’expertise du support et l’anticipation des renforts
Un vrai partenaire ne se contente pas de fournir une vasque et un support. Il anticipe la mise en œuvre.

Exemple de préconisation complémentaire pour la pose de renforts
Vous l’aurez compris, un objet BIM n’est pas qu’une jolie forme. C’est un concentré de données techniques qui doit être fiable et complet.
Mais même le meilleur objet BIM est inutile sans une expertise pour l’accompagner.
C’est là qu’iStone se différencie. Nous ne sommes pas juste un fournisseur de fichiers, nous sommes un partenaire d’intégration.

Les clashs en BIM ne sont pas une fatalité. Ils sont le symptôme d’un manque de données fiables et de coordination en amont.
En choisissant un partenaire qui maîtrise non seulement son produit, mais aussi son intégration numérique, vous transformez un risque en une opportunité de fluidifier vos chantiers. Le BIM dans les sanitaires devient alors un précieux allié.
Un sanitaire bien conçu numériquement est un sanitaire réussi sur le terrain.

Découvrez comment iStone gère la pose d’une vasque entre murs, tout en prenant en compte les contraintes terrain.
Découvrez comment notre département R&D conçoit des produits sur mesure et des solutions fiables & performantes.

Retrouvez notre gamme de vasque à poser en résine de synthèse, idéale pour les espaces eau et salles de bains

Retrouvez nos gammes de plans vasques collectif en résine de synthèse, idéale pour les espaces collectifs

Retrouvez notre gamme de plans vasque d’angle en résine de synthèse, idéale pour les espaces eau et salles de bains

Les supports de fixation d’iStone sont conçus pour garantir une installation facile et stable de leurs plans vasques

Nous proposons une large gamme de Miroirs pour compléter vos espaces sanitaires de bureaux

Nous proposons une large gamme d’accessoires pour compléter votre plan vasque en Solid Surface

Leader à l’échelle européenne dans la confection d’ouvrage en Solid Surface iStone est une société à taille humaine équipé de divers talents …

Les supports de fixation d’iStone sont conçus pour garantir une installation facile et stable de leurs plans vasques


Chez iStone, nous sommes fiers de nos racines françaises et du savoir-faire exceptionnel de notre atelier

